Votre villavilla

Villa mitoyenne

La villa offre à la fois robustesse et performance énergétique.

AGENCE IMMOBILIÈRE

Immobilière MaMaison

ENTREPRISE DE CONSTRUCTION

TASK5-S SA

Construite de façon traditionnelle, avec une structure en béton et briques en terre cuite, la villa offre à la fois robustesse et performance énergétique. Chaque villa est équipée de son propre système de chauffage ainsi que de panneaux solaires, garantissant un confort optimal tout en assurant la production et la récupération d’électricité pour une autonomie énergétique accrue.

5.5

Pièces

2

Niveaux

152 m²

Surface hab./villa

23 m²

Surface terrasse

Dès 790'000.-

Prix

Privatif

Terrasse/jardin

Int./ext.

Parking

2026

Construction

Aménagement par villa

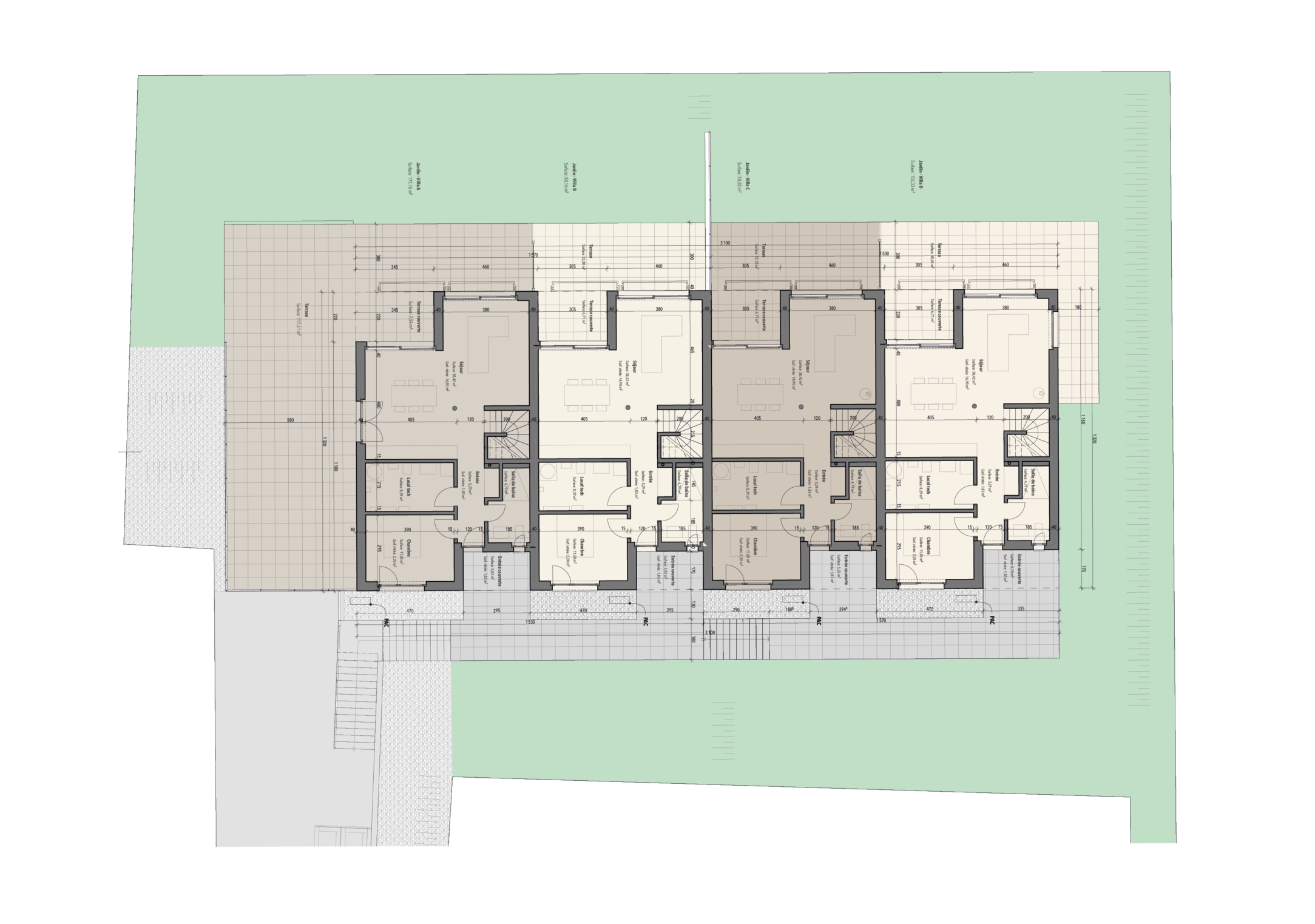
Rez-de-chaussée

Entrée principale avec halle

Salon – cuisine

WC – douche visiteurs

Terrasse plein pied

Jardin privatisé

Buanderie – local technique

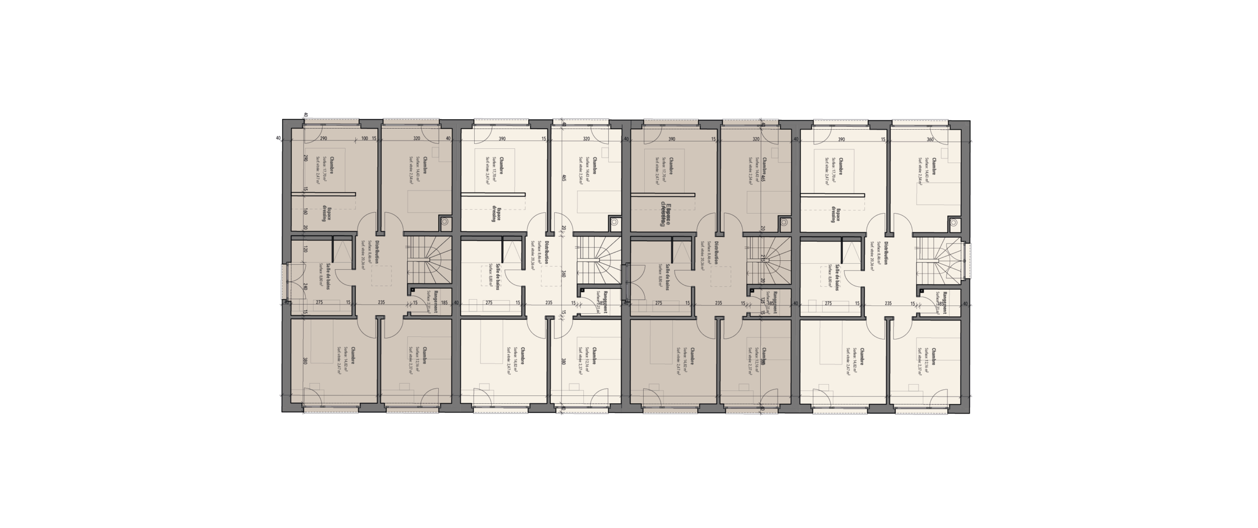
1er étage

4 chambres

Salle de bain

Local de rangement

Plans RDC & 1er étage